Vitawani Shipbuilding Sdn Bhd leads Malaysia’s shipbuilding industry, delivering specialized tugs and offshore vessels to global markets.
We offer comprehensive shipbuilding solutions tailored to meet diverse operational and project requirements.
We deliver pioneering shipbuilding projects that embody precision, innovation, and reliability across the global maritime industry.
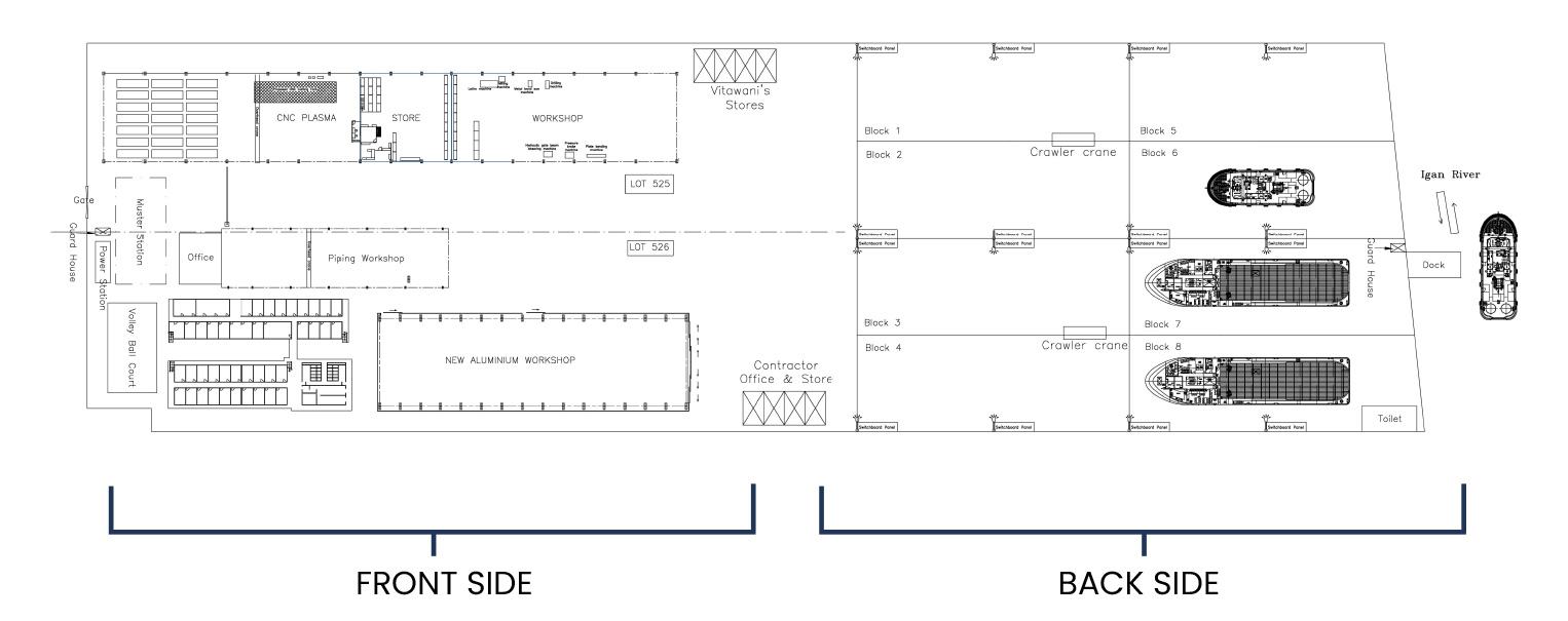
Shipyard LocationOur shipyard is located at Rantau Panjang Industrial Zone of Sibu, Sarawak, Malaysia.